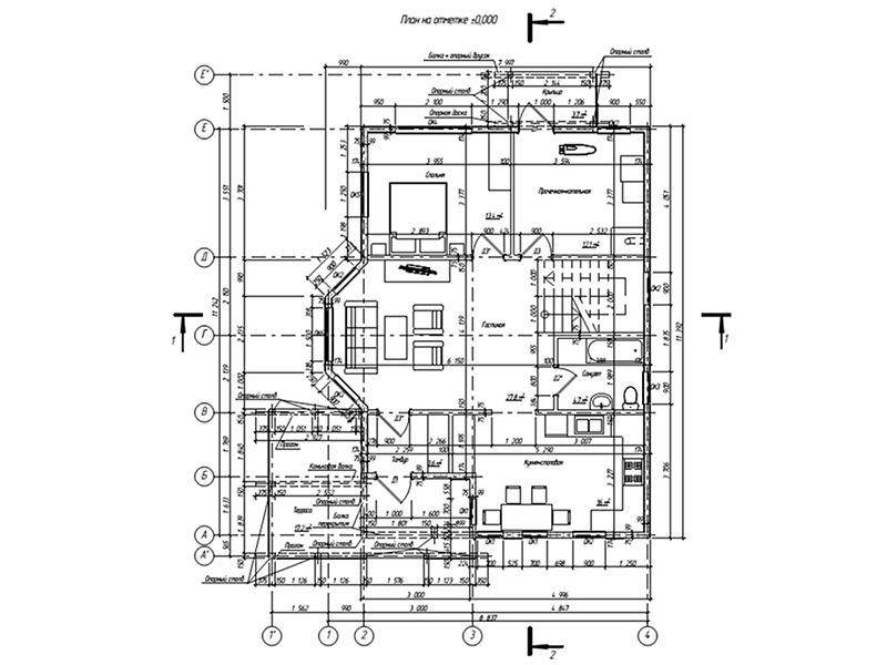
Фундамент — монолитная ж/б плита
Несущие стены — SIP панель (174мм)
Покрытие — металочерепица
Наружная отделка — штукатурка, облицовочная плитка, природный камень
+7 (383) 248-3898
+7 962-828-3898 (whatsapp)
г. Новосибирск
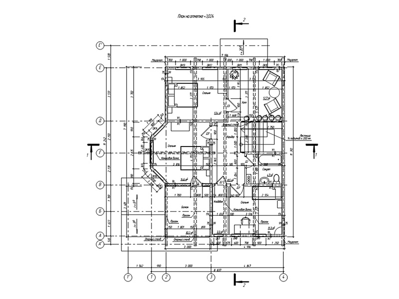
Фундамент — монолитная ж/б плита
Несущие стены — SIP панель (174мм)
Покрытие — металочерепица
Наружная отделка — штукатурка, облицовочная плитка, природный камень





