Фундамент — деревянный ростверк на ж/б сваях
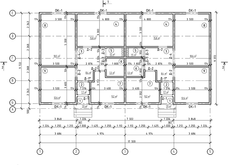
Несущие стены — SIP панель (174мм)
Покрытие — битумная черепица
Наружная отделка — сайдинг
+7 (383) 248-3898
+7 962-828-3898 (whatsapp)
г. Новосибирск
Фундамент — деревянный ростверк на ж/б сваях
Несущие стены — SIP панель (174мм)
Покрытие — битумная черепица
Наружная отделка — сайдинг




