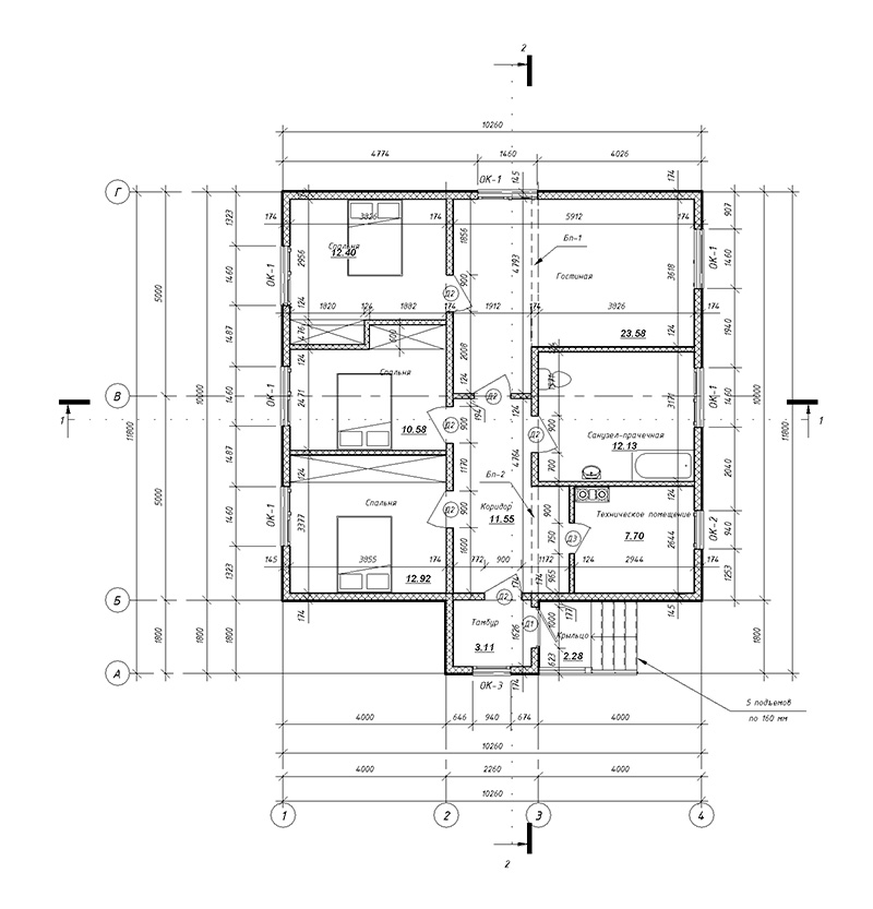
Фундамент — деревянный ростверк по свайному фундаменту
Несущие стены — SIP панель (174мм)
Покрытие — металочерепица
Наружная отделка — декоративная штукатурка
+7 (383) 248-3898
+7 962-828-3898 (whatsapp)
г. Новосибирск
Фундамент — деревянный ростверк по свайному фундаменту
Несущие стены — SIP панель (174мм)
Покрытие — металочерепица
Наружная отделка — декоративная штукатурка




