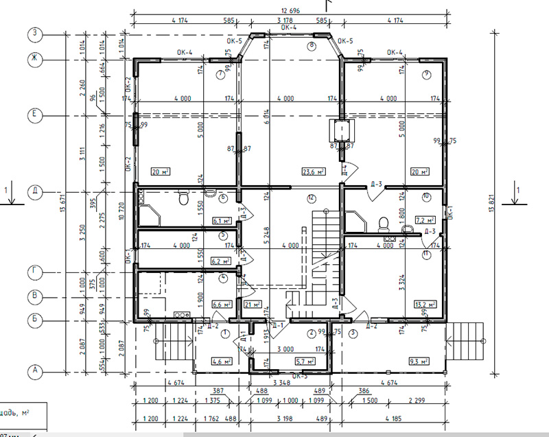
Фундамент — мелкозаглубленный ленточный на буронабивных сваях
Несущие стены — SIP панель (174мм)
Покрытие — битумная черепица
Наружная отделка — фиброцементные панели.
+7 (383) 248-3898
+7 962-828-3898 (whatsapp)
г. Новосибирск
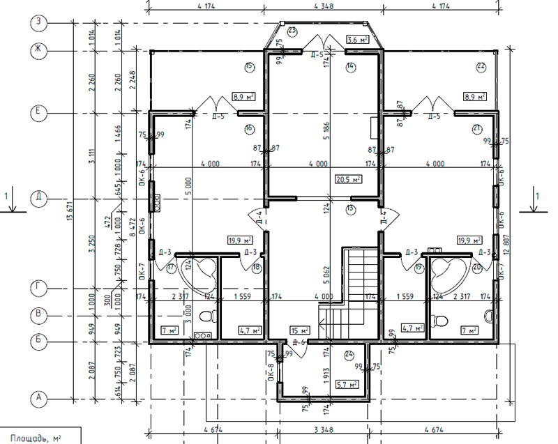
Фундамент — мелкозаглубленный ленточный на буронабивных сваях
Несущие стены — SIP панель (174мм)
Покрытие — битумная черепица
Наружная отделка — фиброцементные панели.





